×
VerkoopVerhuurNieuwbouwContact

Schatting Realisaties

NL FR

Appartement te koop te maasmechelen

€ 250.000
Ref. App01
1

azertyuiop^qsdfghjklm msldk mlkmqlk

Thomas Moureau
+ (0)

Interesse in dit vastgoed?

Vereiste velden *

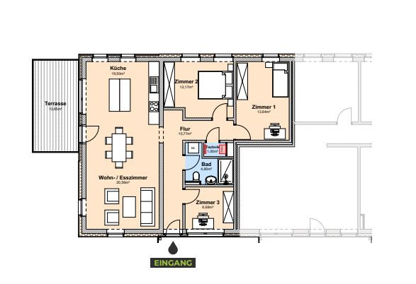
Specificaties:

Type: Appartement
Bouwjaar:
Algemene staat:
Slaapkamer(s):1
Adres: Bampstraat 5
, Maasmechelen
K.I.:

Indeling:

Slaapkamer1
Keuken1

Technische info:

Watertoets:
Zone:
G-score
P-score
Stedebouwkundige info:
Vergunning: Nee
Bestemming:
Voorkooprecht: Nee
Verkavelingsvergunning: Nee
Top