×
VerkoopVerhuurNieuwbouwContact

Schatting Realisaties

NL FR

€ 500.000
Ref. Villa01

Thomas Moureau
+ (0)

Interesse in dit vastgoed?

Vereiste velden *

Specificaties:

Type: Villa
Bouwjaar:
Algemene staat:
Adres: 5
, Betera
K.I.:

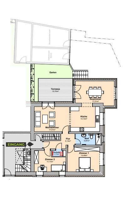
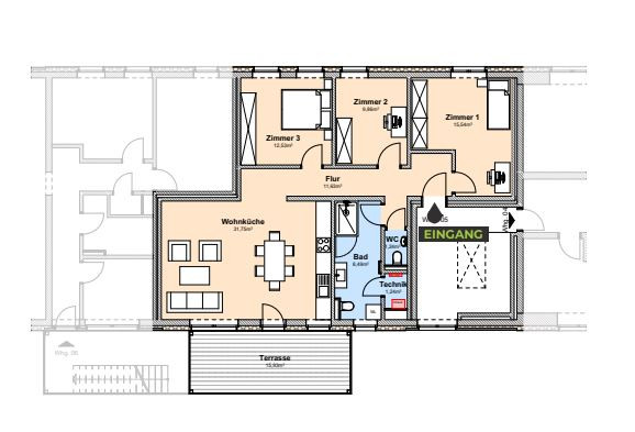
Indeling:

Technische info:

Watertoets:
Zone:
G-score
P-score
Stedebouwkundige info:
Vergunning: Nee
Bestemming:
Voorkooprecht: Nee
Verkavelingsvergunning: Nee
Top