×
VerkoopVerhuurNieuwbouwContact

Schatting Realisaties

NL FR

Villa met zwembad

€ 1.100
Ref. Finesse_001
1 1 132 m² 100 m²

Deze prachtige villa met zwembad uit 2016 is te huur. Je kan deze villa vinden in het centrum van Waregem, dicht bij supermarkten, bakker, school ... 

Documenten

Julie Vancompernolle
+32 (0)495123456

Interesse in dit vastgoed?

Vereiste velden *

Specificaties:

Type: Villa
Bouwjaar: 2016
Algemene staat: Gerenoveerd
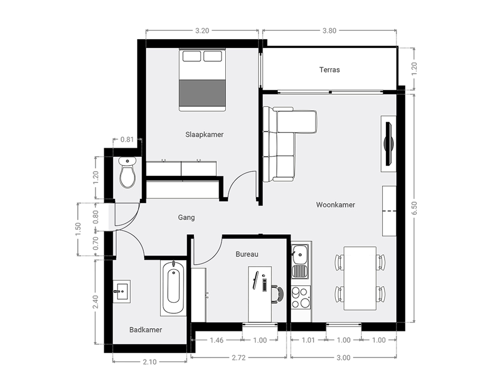
Slaapkamer(s):1
Bewoonbare opp. m²: 132
Bebouwde opp. m²: 45
Totale opp. m² incl. terras: 100
Adres: Vijfseweg 25
, Waregem
K.I.:

Indeling:

Slaapkamer1
Keuken1
Badkamer1
Woonkamer1
Eetkamer1
Suite1

Technische info:

Watertoets:
Niet overstromingsgevoelig
Zone: Niet van toepassing
G-score A
P-score B
Stedebouwkundige info:
Dagvaarding : Nee
Vergunning: Ja
Bestemming:
Voorkooprecht: Nee
Verkavelingsvergunning: Nee
Top